info@antiqua.hu
Mail: info@antiqua.hu

Antiqua  - 1108 Budapest, Kozma utca 7.  -  Postacím: Budapest  1475  Pf.:120

Kezdőoldal Termékek Vákuumos emelők Vákuumpumpa Csipesz Oszlopos forgódaru Fotogaléria Videógaléria Katalógusok Kapcsolat

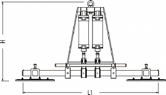
Vákuumos emelő kőhöz

Topline



Modell

Teherbírás

Szívófej

Méretek

Súly


kg

db

D

mm

A

mm

B

mm

A1

mm

B1

mm

C

mm

D

mm

D1

mm

D

min

D

max

D2

min

D2

max

L1

L

min

L

max

H

mm

kg

VAM 2 PN / 250

250

2


450

200



790



765

890



1500

900

1840

870

55

VAM 2 PN / 500

500

2


450

300



790



815

890



1500

1140

1840

870

60

VAM 2 PN / 1000

1000

2


600

400



790



870

970



1500

1140

2010

875

76

VAM 2 PN / 1400

1400

2


800

400



790



895

1095



1500

1140

2210

1050

90

Vákuumos emelő kövekhez

Topline - VAM 2 PN

Teherbírás: 250 - 1.400 kg

Billentés pneumatikus: 0° - 90°